Hochwertige 3-Zimmerwohnung mit großem Studio!
Eckdaten
- Art Dachgeschosswohnung
- Lage 48599 Gronau (Westfalen)
- Miete zzgl. NK 1.415,00 €
- Nebenkosten 110,00 €
- Wohnfläche ca. 92 m²
- Zimmer 3
- Kellerfläche ca. 11 m²
- Nutzfläche ca. 55 m²
- Heizungsart Wärmepumpe
- Einbauküche nein
- Gäste-WC ja
- Anzahl Balkone 1
- Stellplatztyp Aussenstellplatz
- Stellplatzanzahl 1
- Kaution 2880 €
- Stellplatzmiete 25,00 €
- Verfügbar ab Februar/März 2026
- Bodenbelag Vinyl Fliesen
- Ausstattung des Bades Fenster Dusche
- Zustand Neuwertig
- Immobilien-ID 129034179
Immobilie
Hier präsentieren wir Ihnen eine moderne Neubau-Mietwohnung in Gronau-Epe.
Es handelt sich um eine geräumige 3-Zimmer Obergeschosswohnung mit großem Studio im Spitzboden.
Diese hochwertige Wohnung ist ab Februar/März 2026 Bezugsbereit.
Lage
Die Wohnung befindet sich am Stadtrand Epe, dass Stadtzentrum ist nur 2 Kilometer entfernt und auch mit dem Auto in wenigen Minuten erreichbar.
In unter 10 Fußminuten befindet sich ein Supermarkt und eine Bäckerei.
Da die Auffahrt zur B54 nur wenige Autominuten entfernt ist, sind auch die A30 und A31 schnell erreicht.
Ausstattung
Diese Immobilie verfügt über ca. 92 Quadratmetern, welche sich auf das Obergeschoss verteilen.
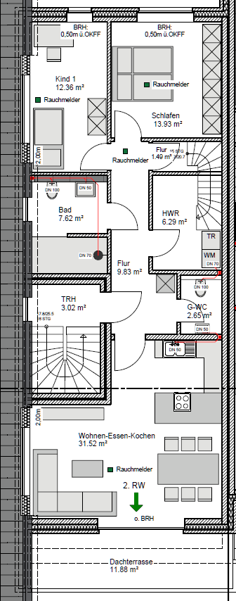
Herzstück der Wohnung ist die helle Wohnküche mit Zugang zur großzügig geschnittenen Dachterrasse ruhiggelegen auf der Hinterseite des Hauses. Die erstklassig durchdachte Wohnung bietet einen großen Wohn-/Essbereich mit offener Küche und angrenzender Dachterrasse, zwei Schlafzimmer, ein Badezimmer mit Dusche, ein Gäste-WC, sowie einen Hauswirtschaftsraum an. Im Hauswirtschaftsraum befinden sich die Treppen, die den Zugang zum Dachgeschoss ermöglichen. Das Studio im Dachgeschoss bietet eine Fläche von 55 m² welches ein Vielfältiges Nutzen bietet.
Die Schlafräume und das Studio sind mit Vinylboden ausgestattet, während in den übrigen Bereichen der Wohnung Fliesen verlegt wurden. Die Mieter haben die Möglichkeit, die Wände ganz nach ihrem persönlichen Geschmack zu tapezieren und zu streichen.
Zu der Wohnung gehört ein eigener Kellerraum mit ca. 11 m² und ein Gemeinschaftsraum, welcher zusammen mit der unteren Wohnung genutzt wird.
Jede Wohnung hat Ihren eigenen Stellplatz.
Die genaue Raumaufteilung können Sie dem Grundriss entnehmen
Zusammengefasst begeistert die Wohnung durch folgende Ausstattungsmerkmale:
– energieeffiziente Wärmeversorgung über Wärmepumpe
– Fußbodenheizung mit Temperaturregelung in jedem Raum
– elektrische Rollladen
– Offene Küche und großer Wohnbereich mit angrenzender Dachterrasse
– Dachterrasse mit 12 m² auf der Haushinterseite
– 2 Schlafzimmer im OG und großes Studio im DG
– Modernes Badezimmer mit großer Dusche
– separates Gäste-WC
– Hauswirtschaftsraum mit Waschmaschinen-/Trockneranschluss
– Klingelanlage mit Gegensprechanlage
– Stellplatz
– Eigener Kellerraum mit ca. 11 m² + gemeinschaftlicher Kellerraum
Sonstiges
Nettokaltmiete: 1.415,00 €
Stellplatzmiete: 25,00€
Betriebskostenvorauszahlung: 250,00 € (inkl. Heizkosten)
Gesamtmiete: 1.690,00 €
Für die Stromkosten muss ein separater Vertrag bei einen beliebigen Anbieter abgeschlossen werden.
Bei Interesse schreiben Sie uns gerne eine Nachricht. Bitte geben Sie uns eine kurze Info (über Sie und Personen die mit einziehen, Ihr Alter und Berufstätigkeit). Wir bitten um Verständnis, dass nur vollständige Nachrichten beantwortet werden.
Energieausweisangaben
- Enerigeausweistyp Bedarfsausweis
- Energiekennwert 12 KWh(m²*a)
- Energieeffizienzklasse A+
- Energie mit Warmwasser ja
- Energieausweis erstellt am 01.09.2034
- Energieausweis gültig bis 02.09.2024
- Heizungsart Wärmepumpe
- Befeuerung / Energieträger Wärmepumpe
Herzlichen Dank für Ihre Anfrage.
Wir werden diese so schnell wie möglich bearbeiten.


